Budują stadion na Ekstraligę

Polonia Poznań ma minimalne szanse na utrzymanie Ekstraligi. Miasto z rocznym opóźnieniem buduje im teraz stadion.


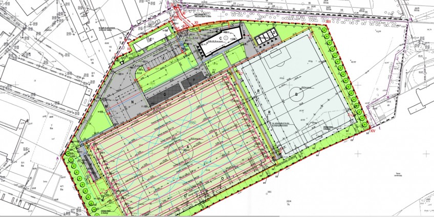
Historia ze stadionem dla Towarzystwa Sportowego Polonia Poznań to mały miniserial. W Walentynki ogłoszony został przetarg na wykonawcę modernizacji stadionu. Jak dobrze pójdzie to na nowy obiekt piłkarki poznańskiej Polonii będą mogły wejść późną jesienią, ale wiadomo jak to jest z inwestycjami, mogą się opóźnić, ta ciągle się opóźnia już od ponad roku.

Przystępując do poprzedniego sezonu 2017/2018 działacze grającej jeszcze wówczas w I lidze kobiet Polonii Poznań masowo przekładali mecze zamieniając w terminarzu gospodarza z gościem. Jesienią 2017 roku Polonia prawie wszystkie ligowe mecze rozgrywała na własnym boisku, aby wiosną ubiegłego roku grać tylko na wyjazdach, bo już mówiono o przebudowie stadionu. Po awansie do Ekstraligi kobiet przebudowa boiska jeszcze nawet nie ruszyła a jego stan był taki, że Ekstraligowy zespół musiał szukać innego miejsca do grania. Budowa ma ruszyć dopiero teraz, a właściwie za niedługo.

Do 5 marca potencjalni wykonawcy modernizacji stadionu mogą składać swoje oferty w postępowaniu przetargowym. Po wyłonieniu wykonawcy stadion ma zostać przebudowany w ciągu +/- pół roku. Głównym zapisem w dokumentacji przebudowy stadionu jest podkreślenie, aby spełniał on wymogi PZPN w zakresie rozgrywania na nim meczów Ekstraligi kobiet. Boisko będzie z naturalną nawierzchnią, będzie również małe boisko treningowe, tablica wynikowa czy m.in. trybuny na 350 miejsc siedzących.

Sytuacja sportowa Polonii, która zajmuje ostatnie miejsce w Ekstralidze pozwala snuć przypuszczenia, że jeśli Ekstraliga będzie na tym stadionie to dopiero za parę lat. Przypomnijmy, że jesienią klub był bliski wycofania z Ekstraligi ze względów finansowych. Pomogła pomoc miasta Poznania. Smutnym zbiegiem pechowych okoliczności może być jak w maju Polonia spadnie z ligi i w tym momencie rozpocznie się przebudowa stadionu na miarę Ekstraligi. W rundzie jesiennej poznański klub wynajmował bardzo okazały jak na kobiecą ligę stadion Warty Poznań, ale słono za to płacił. Później przeniósł się na boisko ze sztuczną nawierzchnią niespełniające wymogów licencyjnych PZPN ale warunkowo dopuszczone do rozgrywek.

Piłkarki Polonii Poznań rundę wiosną w Ekstralidze kobiet zainaugurują w najbliższy czwartek 21 lutego o godzinie 12, kiedy to zmierzą się na boisku przy ulicy Gdańskiej w Poznaniu z AZS PWSZ Wałbrzych. O utrzymanie na najwyższym szczeblu piłkarstwa kobiecego piłkarki ze stolicy Wielkopolski będą przede wszystkim rywalizować z Mitechem Żywiec i AZS Wrocław. Będą miały nowy obiekt więc mają o co grać ale na dziś ich szansę na utrzymanie w elicie są tylko matematyczne. Nie zważając na wszystko przebudowa ich stadionu to dobra wiadomość niezależnie od tego w której lidze będą na nim grać.

Towarzystwo Sportowe Polonia Poznań to klub męsko-żeński. Panowie z Polonii grają w lokalnej "A" klasie natomiast piłkarki w Ekstralidze kobiet i rezerwy w wojewódzkiej III lidze kobiet. Ponadto juniorki młodsze Polonii wiosną zagrają w Makroregionalnej Lidze Juniorek Młodszych U16. Odświeżony obiekt na pewno im się przyda.

[ Ekstraliga kobiet ]